Opis nieruchomości
Podstawowe informacje:
257 m2 wykończone biuro, możliwość pełnego umeblowania
Zalety nieruchomości:
Kameralny Budynek biurowy o wysokim standardzie wykończenia z dostępnymi miejscami parkingowymi.
Lokalizacja:
Lokal położony w Al. Jerozolimskich, w okolicy centra handlowe oraz parki biurowe.
Komunikacja:
Dobra komunikacja, w bliskiej odległości przystanki autobusowe.
Opis nieruchomości:
Nowoczesny, reprezentacyjny, kameralny budynek biurowy z główną recepcją, oraz parkingiem wyposażony nowoczesną windę.
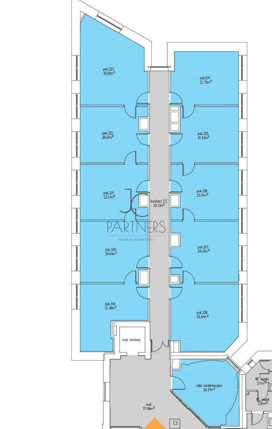
Powierzchnia 287,27m2 netto (270,13 m2 brutto - zawiera współczynnik powierzchni wspólnych) zajmuje połowę skrzydła III piętra, składa się obecnie z 10 przestronnych pokoi biurowych oraz sali konferencyjnej (rzut w galerii).
Dostępne również drugie skrzydło na tym samym piętrze o powierzchni 249,82 m2 netto
Biuro już dostępne!!!
Budynek wyposażony jest w:
- klimatyzację
- wentylację mechaniczną
- uchylne okna
- okablowanie komputerowe kategorii V
- okablowanie elektryczne
- instalację p.poż. (czujniki dymu)
- podwieszane sufity
- monitoring
- kontrolę dostępu
- telewizję przemysłową
- światłowód
- całodobową ochronę
- recepcję główną
- dodatkową salę konferencyjną na 30 osób (wynajem na godziny)
- wspólną stołówkę z zapleczem kuchennym
Dodatkowe informacje:
Czynsz:
13 Euro netto miesięcznie za 1 m2
Opłaty eksploatacyjne:
33,50 zł netto miesięcznie/m2 (opłata za zużycie energii elektrycznej oraz Internet płatna osobno w zależności od wybranego dostawcy)
Miejsca parkingowe:
Do powierzchni 5 miejsc parkingowych w cenie czynszu najmu, możliwość wynajęcia dodatkowych miejsc parkingowych w cenie 250 zł netto za 1 miejsce.
Kaucja:
Zależna od czasu na jaki została zawarta umowa najmu - wacha się pomiędzy wysokością 2 a 3 miesięcznego czynszu najmu.
Informacje zawarte w ofercie uzyskano na podstawie oświadczeń wynajmującego. Załączony plan, zdjęcie nieruchomości jest poglądowe.
Zapraszam do kontaktu również, jeśli szukasz lokalu o innych parametrach. Dysponujemy bogatą ofertę biur, magazynów, obiektów przemysłowych. Z przyjemnością pomogę Ci znaleźć ofertę dopasowaną do Twoich potrzeb.
Niniejsze ogłoszenie jest wyłącznie informacją i nie stanowi oferty w rozumieniu art. 66 § 1 Kodeksu Cywilnego. _ Autorskie prawa majątkowe do fotografii nieruchomości przysługują wyłącznie firmie : JC Partners Sp .z o.o. Kopiowanie, przetwarzanie, rozpowszechnianie fotografii bez zgody JC Partners Nieruchomości jest zabronione i będzie traktowane jako naruszenie ustawy z dnia 4 lutego 1994 r. o prawie autorskim i prawach pokrewnych. Za wykonaną usługę pobieramy wynagrodzenie zgodnie z warunkami uzgodnionymi w zawartej umowie (za wyjątkiem umów zawartych w programie 0%).