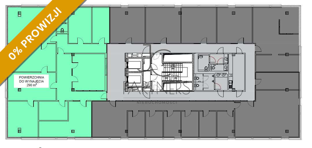
Biuro 290 m2, bliska Wola

Biuro na wynajem
22 360,00 PLN , Pow. 344 m2
Drukuj ofertę
Drukuj ofertę
Typ nieruchomości:
Komercyjny
Powierzchnia:
344 m2
Typ transakcji:
wynajem
Lokalizacja:
Warszawa Wola
Piętro:
3 na 5
Numer oferty:
180419
Cena za m2:
65,00 PLN
Podstawowe informacje:
Powierzchnia biurowo usługowa 290 m2 netto, położona na warszawskiej Woli, z antresolą, w nowoczesnym budynku biurowym.

Zalety nieruchomości:
Budynek biurowy, o wysokim standardzie wykończenia w bardzo dobrej lokalizacji, z dostępnymi miejscami parkingowymi.

Lokalizacja:
Wola, ul. Młynarska.

Komunikacja:
Dogodny dojazd środkami transportu publicznego. W bezpośrednim sąsiedztwie znajdują się przystanki tramwajowe oraz autobusowe, ok 1 km do stacji metra Płocka.

Opis nieruchomości:
Nowoczesny, budynek biurowy, z główną recepcją, restauracją, oraz dużym parkingiem naziemnym i podziemnym, wyposażony nowoczesną windę.
Powierzchnia 290 m2 netto (344 m2 brutto - zawiera współczynnik powierzchni wspólnych) znajduje się na III piętrze.
Zaplecze socjalne w postaci kuchni oraz WC znajduje się na powierzchniach wspólnych.
Dostępne miejsca w hali garażowej, oraz na parkingu naziemnym.

Na zapytanie dostępne również inne powierzchnie biurowe w budynku.

Budynek wyposażony jest w:
- klimatyzację
- wentylację mechaniczną
- okablowanie komputerowe
- okablowanie elektryczne
- instalację p.poż. (czujniki dymu oraz tryskacze)
- podwieszane sufity
- wykładzinę dywanową
- monitoring
- kontrolę dostępu
- telewizję przemysłową
- światłowód
- całodobową ochronę
- recepcję główną

Dodatkowe informacje:
Czynsz:
65 zł netto miesięcznie za 1 m2

Opłaty eksploatacyjne:
25 zł netto miesięcznie/m2 (opłata za energię elektryczną oraz Internet płatna osobno w zależności od wybranego dostawcy)

Współczynnik powierzchni wspólnych:
- współczynnik budynkowy - 6,9%
- współczynnik piętrowy - 11%

Cena miejsca parkingowego na parkingu naziemnym:
325 zł netto miesięcznie za 1 miejsce.

Cena miejsca parkingowego na parkingu naziemnym:
575 zł netto miesięcznie za 1 miejsce.

Współczynnik miejsc parkingowych:
1:30


Zapraszam do kontaktu również, jeśli szukasz biura o o innych parametrach. Dysponujemy bogatą ofertę biur, magazynów, obiektów przemysłowych. Z przyjemnością pomogę Ci znaleźć ofertę dopasowaną do Twoich potrzeb.



Niniejsze ogłoszenie jest wyłącznie informacją i nie stanowi oferty w rozumieniu art. 66 § 1 Kodeksu Cywilnego. _ Autorskie prawa majątkowe do fotografii nieruchomości przysługują wyłącznie firmie : JC Partners Sp .z o.o. Kopiowanie, przetwarzanie, rozpowszechnianie fotografii bez zgody JC Partners Nieruchomości jest zabronione i będzie traktowane jako naruszenie ustawy z dnia 4 lutego 1994 r. o prawie autorskim i prawach pokrewnych. Za wykonaną usługę pobieramy wynagrodzenie zgodnie z warunkami uzgodnionymi w zawartej umowie (za wyjątkiem umów zawartych w programie 0%).
Nieprawidłowy adres E-mail